
小户型装修并非易事,很多人觉得它没什么难度,实则大错特错。大户型在空间格局整改上自由度更高,受限较小;而小户型则不然,受限之处众多,却又有着诸多功能需求,这就需要一定经验才能做好整体设计。所以,小户型设计难度更大,要付出更多精力。

▲原始户型,进门直对厨房,厨房狭小封闭,导致进门没有光线;厨房隔壁是卫生间,同样是狭小空间;过道进去是客厅以及一间卧室,客厅带个小阳台,本身很小的空间分割以后更显逼仄拥堵

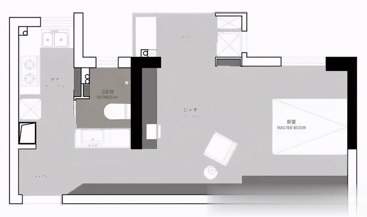
▲设计布局图,首先砸掉厨房多余墙体,开放式布局,可以引光入室,让进门口亮堂,视觉放大空间;改变卫生间入门方向,同时砸掉靠近过道的卫生间墙体,采用玻璃隔墙代替,让视觉上更亮堂,空间更有质感;客厅和卧室打通布局,增加办公书桌,同时打通阳台空间,让整体空间融为一体,更开放更明亮

▲进门全景,打掉厨房多余墙体以后,开放式布局,视觉更开阔,同时引光入室,让光线一览无余;改变卫生间原有入门方向,敲掉部分墙体局部玻璃隔断代替,进一步让入户以及过道光线满足,同时视觉上提升质感

▲进门右手过道空间,能看到客厅以及卧室部分,右手靠墙整体打造收纳柜,满足家里的所有收纳,大面积白色不会有视觉拥堵感,同时白色可以提升整体亮度

▲客厅回看门厅空间,进门左手角落复古的全身镜布局,利用厨房保留的一点墙体做了简易挂钩,可以满足进门的包包悬挂,非常方便

▲开放式小厨房,统一浅色布局,蓝色复古感的地柜定制,视觉上层次分明;卫生间采用复古的木质移门提升颜值,借用卫生间空间朝向厨房做了壁龛收纳,拓展厨房的储物功能

▲进来看一下卧室和客厅全景,进门右手墙体顶天立地的收纳柜布局,满足了家里的所有收纳;因为空间有限,只能采用广角才能看全景;大面积白色和墨绿色跳跃搭配,现代时尚里头又提升了高级感

▲卧室区域单独的地台布局,铺地板饰面,超级大的收纳柜可以满足分类收纳;右手墙面双人位书桌,既是办公区域,又能作为就餐区,同时也是化妆台

▲空间不大一个人住,所以肯定不能按照传统布局去做,本可以作为电视墙的地方,悬空书桌布局,下方墨绿色与吊顶局部绿色呼应,同时与绿色展示柜呼应协调。一把单人沙发和粉色的边几就是会客全部,空间更显宽敞

▲便携式投影满足偶尔的娱乐

▲客厅和卧室共用空间,一个人住,更显空间开阔明亮

▲大面积白色收纳柜,中部绿色的展示柜套色布局,刚好布局单人沙发与边几,平时不论是休闲或者阅读,非常方便实用

▲床头背景拼色布局,与其他呼应一体,让呆板的空间更活泼亮眼

▲铁艺的边几代替床头柜,视觉简洁,同时空间感更轻盈时尚,吊线灯暖色温馨

▲卫生间全部浅色瓷砖铺贴,花洒去掉顶喷实用为主,浴柜定制蓝色与橱柜呼应,玻璃隔墙光线更通透

▲金色的壁灯与吊镜,提升空间高级感
▲玻璃墙体视觉上可以放大空间上海配资网,同时满足光线通透的需求
#小户型装修 #空间布局优化 #收纳设计 #色彩搭配凤凰证券提示:文章来自网络,不代表本站观点。